Unser Angebot für SieHäuser, Wohnungen, Gewerbeimmobilien, Kapitalanlagen
»Zentrales Mehrfamilienhaus mit Gewerbeeinheit
Besonderheiten:
- Massivbauweise
- 2 Zugänge
- 2 Wohneinheiten
- Balkon
- 1 Gewerbeeinheit
- Garage
| Objektart: | Anlageimmobilie |
| Grundstücksfläche: | 229 m² |
| Wohnfläche: | 166 m² |
| Nutzfläche: | ca. 85 m² |
| Gewerbefläche: | 132 m² |
| Gesamtfläche: | ca. 383 m² |
| Vermietbare Fläche: | 300 m² |
| Etagen: | 2 |
| Zimmer: | 10 |
| Baujahr: | 1909 |
| Heizungsart: | Zentralheizung |
| Befeuerungsart: | Gas |
| Parkflächen: | 3 |
| Preisart: | Kaufpreis |
Objektbeschreibung
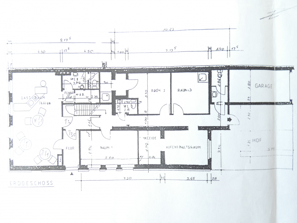
Es handelt sich um ein unterkellertes 2,5 geschossiges Hauptgebäude mit nicht unterkellertem Anbau. Das Grundstück umfasst eine Größe von 229m², davon bebaut sind 197m². Im Erdgeschoss des Hauses befindet sich eine Gewerbeeinheit, im 1. Ober- und 2. Obergeschoss je eine Wohneinheit. Es steht eine Garage und ein kleiner Innenhof zur Verfügung.
Das Erdgeschoss des Hauses wurde jahrzehntelang gewerblich genutzt. Hier befand sich früher ein Stoffvertrieb, dann eine Krankengymnastikpraxis und zuletzt ein Barbetrieb. Per Nutzungsänderung könnte das Erdgeschoss wieder zu Wohnzwecken umfunktioniert werden. Die Gewerberäume sind derzeit noch nach letzter Nutzung eingerichtet. Auf Wunsch kann das Inventar übernommen werden. Aktuell wurde das Gewerbe abgemeldet und die Einheit ist frei. Das 1. Obergeschoss wird noch von der Eigentümerin bewohnt und kann kurzfristig geräumt werden. Die Wohnung im 2. Obergeschoss ist nicht mehr bewohnt und modernisierungsbedürftig.
Das Haus wurde im Jahre 1988 zur Vergrößerung der Krankengymnastikbetriebes um den Anbaubereich ergänzt.
Vermietbare Flächen:
Erdgeschoss/Gewerbe = 132 m²
Wohnung 1. Obergeschoss = 88 m²
Wohnung 2. Obergeschoss = 78 m²
PKW-Garage
Derzeit ist der Treppenaufgang zu den oberen Wohnungen vom Gewerbebereich aus begehbar. Es könnte ein seperater Zugang für die Wohnungen entstehen. Im Hof des Grundstückes könnte ein Aufgang über eine Außentreppe geplant werden. Ggfs. ist der Bau eines Balkones für die Wohnung im 2. Obergeschoss/Dachgeschoss ebenfalls umsetzbar.
Die anliegenden Grundrisse sind von den Raumnutzungen nicht mehr gänzlich aktuell.
Die Wohnung im 1. Obergeschoss verfügt über ein Wohnzimmer in Kombination mit einem Esszimmer, Küche mit Zugang zur Terrasse. Vom Wohnzimmer aus erreicht man den Schlafbereich mit einem Schlafzimmer, weiterführend ein Duschbad und ein separates Ankleidezimmer. Auf halber Etage zwischen Erd- und 1. Obergeschoss steht ein kleiner Abstellraum zur Verfügung.
Die Wohnung im 2. Obergeschoss/Dachgeschoss betritt man über eine kleine Diele, welche separate Zugänge zu Küche, Schlafzimmer I und dem Wohnzimmer bietet. Von der Küche und vom Wohnzimmer aus ist jeweils ein weiteres Schlafzimmer erreichbar. Insgesamt verfügt die Wohnung über 4 Zimmer, Küche und Diele. Das Badezimmer ist auf halber Etage zwischen 1. und 2 Obergeschoss gelegen.
Die PKW-Garage verfügt über ein elektrisches Tor. Es sind im Rahmen der Beibehaltung eines Gewerbebetriebes 2 PKW-Stellplätze genehmigt und baulich umsetzbar.
Die Gewerberäume, welche zuletzt als Barbetrieb genutzt wurden, verfügen über einen großen Gastraum mit Damen- und Herren-WC. 3 weitere Räume sowie sanitäre Bereiche schließen sich dem Erdgeschoss an.
Es besteht kein Denkmalschutz. Der Innenhof ist derzeit mit 2 Abstellräumen bebaut.
Bausubstanz & Energieausweis
Baujahr: 1909
Objektzustand: Renovierungsbedürftig
Letzte Modernisierung/ Sanierung: 2006
Heizungsart: Zentralheizung
Wesentliche Energieträger: Erdgas leicht
Energieausweis: liegt vor
Energieausweistyp: Bedarfsausweis
Endenergiebedarf: 265,6 kWh/(m²*a)
Ausstattung
- Massivbauweise
- größtenteils verklinkerte Fassade
- Fassaden-Wetterseite mit witterungsbeständigen Kunststoffplatten (Jahr 2006)
- Flachdachsanierung Anbau im Jahr 2006
- Kellerdecke als Betonträgerkappendecke
- Kellertreppe und Erdgeschossdecke Stahlbeton
- Obere Geschossdecken aus Holz
- Holztreppe in die oberen Geschosse
- Tapezierter, renovierungsbedürftiger Flur
- 2-fach Isolierglas mit Kunststoffrahmen und Rolläden im Erd- und 1. Obergeschoss
- Einfachverglasung, Holzrahmen im 2. Obergeschoss
- Holzpaneeldecken in den Wohnungen
- Gaszentralheizung vom Jahr 2006 (Buderus)
- Warmwassererwärmung über Durchlauferhitzer
- Separate Wasser-/Gaszähler Gewerbe/Wohnen
- Fernsehempfang über SAT-Schüssel
- Waschküche im Untergeschoss
- Zwei große Lagerräume im Untergeschoss
- Kleiner Technikraum im Untergeschoss
Bei der Sollmiete gehen wir -nach Renovierung- lt. Mietspiegel von folgender, unverbindlicher Berechnung aus:
Gewerbefläche: 132m² x 7,50€ = 990,-€ mtl.
Wohnungen: 166m² x 6,50€ = 1.079,-€ mtl.
Garage: 50,-€ mtl.
Für die Beantwortung Ihrer offenen Fragen, weitere Unterlagen und zur Abstimmung eines unverbindlichen Besichtigungstermines erreichen Sie uns per E-Mail sowie unter den angegebenen Rufnummern 02163/3413544 oder 0177/3490063.
Alle Angaben wurden mit Sorgfalt zusammengestellt. Trotzdem können Fehler nicht ausgeschlossen werden. Alle Informationen sind ohne Gewähr, Änderungen und Zwischenvermietung sowie -verkauf vorbehalten.
Lagebeschreibung
Sehr zentral, dennoch ruhig gelegen auf dem Neumarkt in Viersen, Stadtteil Dülken. Einkaufsmöglichkeiten, Schule, Kindergarten, Ärzte, Apotheke, Bäckerei, Verwaltungsstellen sowie Anschluss an öffentliche Verkehrsmittel findet sich in ein paar Minuten Fussweg. In direkter Nähe zur Dülkener Altstadt. Der historische Stadtkern hat besondere Vorzüge, die ihn als Wohnstandort interessant machen: natürlich das Altstadt-Flair mit seinen vielen denkmalgeschützten Häusern und Gassen sowie die kurzen Wege für Alltagserledigungen.
Viersen und seine Stadtteile beherbergt ca. 76.000 Einwohner und verfügt über eine sehr gute Infrastruktur mit schönen Stadtkernen.
Große Städte in der näheren Umgebung sind Mönchengladbach (ca. 10 km), Krefeld (ca. 20 km), Düsseldorf (etwa 30 km).
Anbindung zur Autobahn A61 mit dem PKW in max. 5 Minuten Fahrzeit.




